ZZYW型自力式微压、差压调节阀是一种无需外加能源,利用被控介质自身能量当动力源,引入执行机构膜室产生推力,控制节流元件运动达到自动调节。
产品工作原理和用途:
ZZYW型自力式微压、差压调节阀是一种无需外加能源,利用被控介质自身能量当动力源,引入执行机构膜室产生推力,控制节流元件运动达到自动调节。主要用于各种工业炉气体燃烧系统,控制甲、乙两种燃料混合比流量,达到理想的然料条件:用于氢冷发电机组密封油与氢气、液化气、氧气、氮气等各种工业气体的减压、稳压、泄压调节:用于各种油品、化学品、液体储罐气封。
产品结构特点:
1、自力式压力调节阀无需外加能源,能在无电无气的场合工作,既方便又节约能源。
2、压力分段范围细且互相交叉,调节精度高。
3、压力设定值在运行期间可连续设定。
4、对阀后压力调节,阀前压力与阀后压力之间比为10:1~10:8
5、采用压力平衡机构,使调节阀反应灵敏,控制精确
产品性能参数:
公称通径DN(mm)
|
20
|
25
|
32
|
40
|
50
|
65
|
80
|
100
|
额定流量系数Kv
|
7
|
11
|
20
|
30
|
48
|
75
|
120
|
190
|
公称压力(MPa)
|
1.0 1.6
|
固有流量特性
|
快开
|
保证调压阀正常工作
的较小压差P(MPa)
|
≥0.01
|
压力分段范围
(KPa)
|
0.5~6 5~10 9~15 12~19 18~25 22~30
28~35 32~40 38~50 48~60 58~72 70~100
|
工作温度℃
|
≤80
|
适合介质
|
气体、蒸汽、低粘度液体
|
法兰尺寸、型式
|
PN10、16、GB9113-88凸式
或根据用户要求选配其它标准型式的法兰(如:ANSI、JIS、DIN等标准)
|
结构长度
|
按GB12221-89标准
|
产品主要零件材料:
零件名称
|
材料
|
阀体、阀盖
|
HT200
|
ZG230-450
|
ZG1Cr18Ni9Ti
|
ZG0Cr18Ni12Mo2Ti
|
阀芯、阀座
|
1Cr18Ni9Ti
|
0Cr18Ni12Mo2Ti
|
(增强)聚四氟乙烯
|
司太莱合金堆焊
|
压力平衡元件
|
波纹管
|
18Ni12Mo2Ti
|
弹簧
|
18Ni12Mo2Ti
|

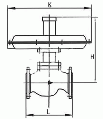
产品主要尺寸:
公称通径
DN
|
20
|
25
|
32
|
40
|
50
|
65
|
80
|
100
|
法兰距离L
|
185
|
200
|
205
|
222
|
254
|
276
|
298
|
352
|
执行器宽K
|
395
|
总高度H
|
456
|
465
|
470
|
470
|
480
|
490
|
490
|
510
|
导压管接口螺纹
|
M16×1.5
|
重量Kg
|
12
|
13
|
15
|
17
|
20
|
28
|
38
|
43
|